
No.625437 尼崎市戸ノ内町2丁目
- 販売価格: 1,980万円
- 最新更新日:2026年2月19日
- こちらの物件は
「アップルコーポレイション アパマンショップ不動産販売JR尼崎店」
にて取り扱っております。
- TEL:06-6495-3577
物件写真
物件概要
- ■交通 阪急神戸線 園田駅
- ■交通 阪急神戸線 園田駅
- ■専有面積 98.82m2
- ■階数/階数 階/2階
- ■土地権利 所有権
- ■駐車場 あり
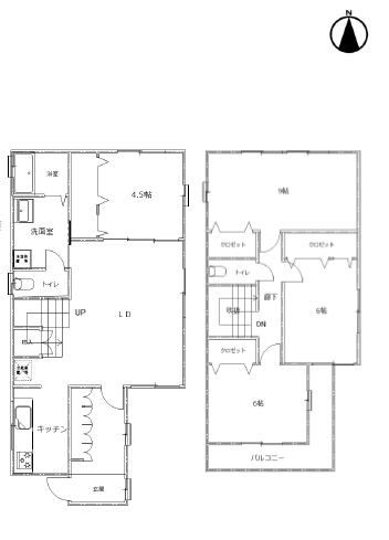
- ■間取 4LDK
- ■総戸数
- ■築年月
- ■管理費
- ■修繕積立
- ■建物構造 木造
- ■現況 空家
- ■設備 駐車スペース有/フローリング/バリアフリー/システムキッチン/ガスコンロ/シャンプードレッサー/室内洗濯機置場/洗浄便座/TVモニターホン
- 【注意事項】
- 築19年でお求め価格が魅力です♪空家ですのでお気軽にご見学頂けますよ♪
- ※ 図面と現況が異なる場合は、現況優先と致します。
- ※ 掲載物件は成約済み・売却中止となる場合がございます。
- ※ 成約の際は仲介手数料とこれにかかる消費税が必要です。
