
No.617104 尼崎市南武庫之荘10丁目
- 販売価格: 4,690万円
- 最新更新日:2026年1月13日
- こちらの物件は
「アップルコーポレイション アパマンショップ不動産販売JR尼崎店」
にて取り扱っております。
- TEL:06-6495-3577
物件写真
物件概要
- ■交通 東海道本線 甲子園口駅 徒歩19分
- ■交通 東海道本線 甲子園口駅 徒歩19分
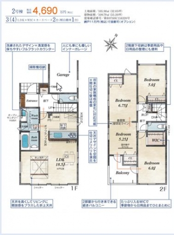
- ■専有面積 109.79m2
- ■階数/階数 階/2階
- ■土地権利 所有権
- ■駐車場 あり
- ■間取 3LDK
- ■総戸数
- ■築年月
- ■管理費
- ■修繕積立
- ■建物構造 木造
- ■現況 建築中
- ■設備 駐車スペース有/フローリング/カウンターキッチン/ウォークインクローゼット/バリアフリー/システムキッチン/ガスコンロ/TVモニターホン/シャンプードレッサー/室内洗濯機置場/洗浄便座/浴室乾燥機/食洗器
- 【注意事項】
- 全3区画土地約31.5坪以上!並列駐車2台可!広いLDK約16帖以上!今ならお好きな区画を選択頂けますよ♪
- ※ 図面と現況が異なる場合は、現況優先と致します。
- ※ 掲載物件は成約済み・売却中止となる場合がございます。
- ※ 成約の際は仲介手数料とこれにかかる消費税が必要です。
