
No.605871 尼崎市御園3丁目
- 販売価格: 2,980万円
- 最新更新日:2025年11月21日
- こちらの物件は
「アップルコーポレイション アパマンショップ不動産販売JR尼崎店」
にて取り扱っております。
- TEL:06-6495-3577
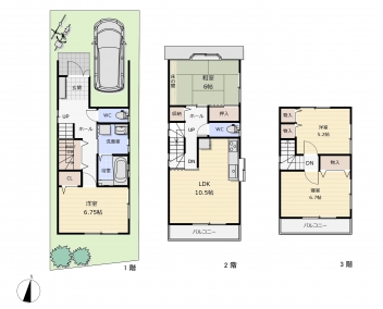
物件写真
物件概要
- ■交通 福知山線 塚口駅 徒歩13分
- ■交通 福知山線 塚口駅 徒歩13分
- ■専有面積 96.09m2
- ■階数/階数 階/3階
- ■土地権利 所有権
- ■駐車場 あり
- ■間取 4LDK
- ■総戸数
- ■築年月 2000/6
- ■管理費
- ■修繕積立
- ■建物構造 木造
- ■現況 空家
- ■設備 駐車スペース有/フローリング/室内リフォーム済/バリアフリー/システムキッチン/ガスコンロ/シャンプードレッサー/室内洗濯機置場/洗浄便座/浴室乾燥機/TVモニターホン/食洗器
- 【注意事項】
- JR塚口駅徒歩13分の住宅街にございます。2025年10月には内外装リフォーム済みでピッカピカ♪当面メンテナンス不要なお家ですよ♪
- ※ 図面と現況が異なる場合は、現況優先と致します。
- ※ 掲載物件は成約済み・売却中止となる場合がございます。
- ※ 成約の際は仲介手数料とこれにかかる消費税が必要です。
