
No.597915 尼崎市西難波町6丁目
- 販売価格: 3,950万円
- 最新更新日:2025年11月11日
- こちらの物件は
「アップルコーポレイション アパマンショップ不動産販売JR尼崎店」
にて取り扱っております。
- TEL:06-6495-3577
物件写真
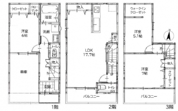
物件概要
- ■交通 東海道本線 立花駅 徒歩16分
- ■交通 東海道本線 立花駅 徒歩16分
- ■専有面積 101.6m2
- ■階数/階数 階/3階
- ■土地権利 所有権
- ■駐車場 あり
- ■間取 3LDK
- ■総戸数
- ■築年月
- ■管理費
- ■修繕積立
- ■建物構造 木造
- ■現況 完成済
- ■設備 駐車スペース有/フローリング/カウンターキッチン/ウォークインクローゼット/バリアフリー/システムキッチン/ガスコンロ/TVモニターホン/シャンプードレッサー/室内洗濯機置場/洗浄便座/浴室乾燥機/食洗器
- 【注意事項】
- 尼崎市役所近くの住宅街にございます。難波の梅小学校近く、お子様の通学も安心ですね♪是非この機会にお気軽にご見学下さい♪
- ※ 図面と現況が異なる場合は、現況優先と致します。
- ※ 掲載物件は成約済み・売却中止となる場合がございます。
- ※ 成約の際は仲介手数料とこれにかかる消費税が必要です。
