
No.597665 尼崎市富松町4丁目
- 販売価格: 1,680万円
- 最新更新日:2025年11月16日
- こちらの物件は
「アップルコーポレイション アパマンショップ不動産販売JR尼崎店」
にて取り扱っております。
- TEL:06-6495-3577
物件写真
物件概要
- ■交通 阪急伊丹線 稲野駅 徒歩17分
- ■交通 阪急伊丹線 稲野駅 徒歩17分
- ■専有面積 90.55m2
- ■階数/階数 階/3階
- ■土地権利 所有権
- ■駐車場 あり
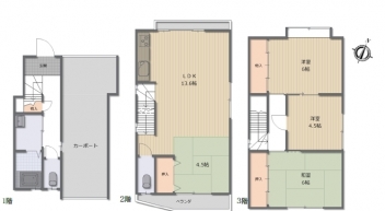
- ■間取 4LDK
- ■総戸数
- ■築年月
- ■管理費
- ■修繕積立
- ■建物構造 鉄骨造
- ■現況 空家
- ■設備 駐車スペース有/フローリング/システムキッチン/ガスコンロ/シャンプードレッサー/室内洗濯機置場/洗浄便座
- 【注意事項】
- 尼崎市立塚口中学校近くの住宅街にございます。強固な鉄骨造と4LDKが魅力です♪
- ※ 図面と現況が異なる場合は、現況優先と致します。
- ※ 掲載物件は成約済み・売却中止となる場合がございます。
- ※ 成約の際は仲介手数料とこれにかかる消費税が必要です。
